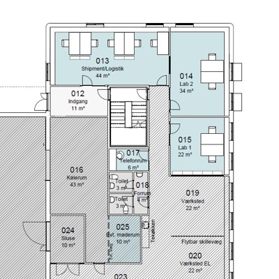
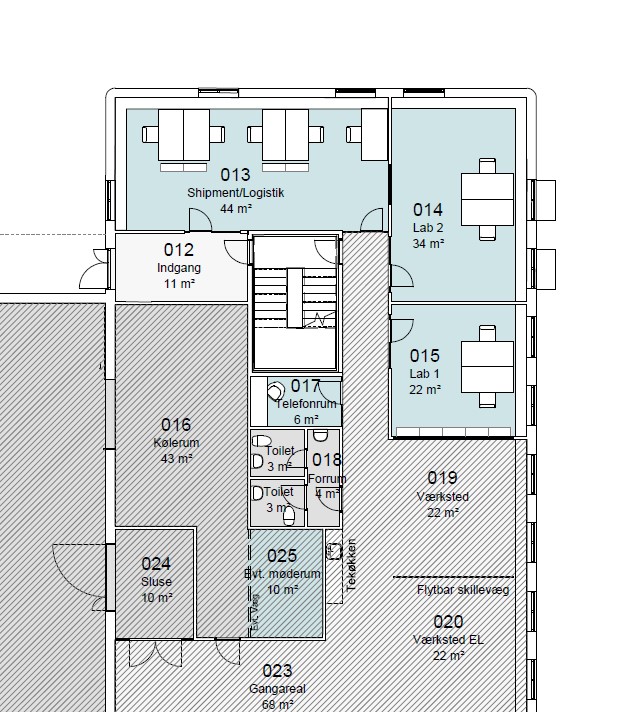
SAGSNAVN: GYDEVANG, ALLERØD
Bygherre: Lattec I/S
Rådgiver: Arcnordic
Entrepriseform: Hovedentreprise
Entreprisesum: Kr. 5,8 mio. ekskl. moms
Bygningsstørrelse: 1900 m2 kontor og Produktion
Udførelsesperiode: Maj 2021 - Marts 2022



















